

LOCALE - 155 m²- LOCATO
location_on Trieste - Largo Barriera, Ospedale Maggiore, Settefontane
Descrizione dell'immobile
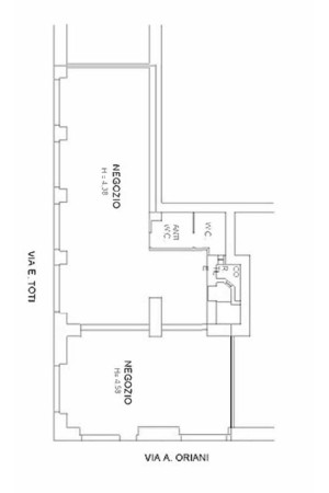
Sito in una via ad alto scorrimento veicolare e pedonale in zona centrale, Immobiliare 4B propone in vendita un locale commerciale ad uso investimento recentemente ristrutturato. In Via Oriani 5/A, il negozio presenta una metratura totale pari a 155 m² disposti su un unico piano e con conformazione open-space. Completano la proprietà un vano magazzino e un WC finestrato. L'immobile vanta 2 vetrine sulla strada principale, oltre ad ulteriori 5 su Via Toti. L'altezza interna è importante con oltre 4,5 metri e mattoni a vista sul soffitto. L’impianto di condizionamento e riscaldamento sono autonomi. La zona risulta essere trafficata e popolata, facilmente raggiungibile dai mezzi di trasporto pubblici e a poca distanza da tutti i servizi di prima necessità. Attualmente locato per attività di negozio di abbigliamento, l’immobile è locato con contratto regolarmente registrato 6 + 6 anni al valore mensile di € 1.800,00 (mille/00) + IVA e prima scadenza contrattuale prevista per il 31/12/2027. Il valore di vendita richiesto è pari ad € 265.000,00 + IVA che porta la rendita lorda a circa il 7% annuo. Per ulteriori informazioni e/o consulenza, contattaci ai seguenti indirizzi: +39 040 9719003 - INFO@IMMOBILIARE4B.IT. L'agenzia IMMOBILIARE 4B è specializzata esclusivamente nel settore immobiliare commerciale e industriale, a Trieste e in tutto il Friuli-Venezia Giulia.
Planimetria
Posizione strategica
Richiedi informazioni
I nostri consulenti ti contatteranno il prima possibile.
vrpano Virtual Tour mail Invia Messaggio192877594