

ATTIVITA’ PANIFICIO - 105 M² - CORSO PUCCINI, 8 (MUGGIA)
location_on Muggia - Centro
Descrizione dell'immobile
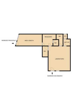
Immobiliare 4B propone in vendita una storica attività di panificio (PANIFICIO ELZERI) sita nel cuore di Muggia e diventata negli anni punto di riferimento imprescindibile per i residenti. Particolarità importante del panificio è che l’unico in città ad avere il forno in loco. Il locale ha una metratura pari a 105 m² totali, suddivisi in 43 m² di negozio e 62 m² di laboratorio con forno. L’immobile al suo interno è composto da: un vano open-space adibito ad area vendita, un ampio vano ad uso laboratorio collegato all’area vendita, oltre spazi accessori come spogliatoi, magazzini e servizi igienici. Il contratto di locazione verrà stipulato con contratto commerciale 6+6 anni, ad un canone mensile pari ad € 1.400,00 ESENTE IVA ed esente da spese condominiali. Il valore di vendita richiesto è di € 45.000,00 (quarantacinquemila/00). All’interno del valore di vendita è compresa tutta l’attrezzatura, macchinari e mobilio presente nell’immobile. Questa attività si presenta come un ottimo investimento per subentrare in un locale ed attività storica e famosa nella città di Muggia. Contattaci subito al +39 040 9719003 o scrivi a info@immobiliare4b.it per fissare una visita. L'agenzia IMMOBILIARE 4B è specializzata esclusivamente nel settore immobiliare commerciale e industriale, a Trieste e in tutto il Friuli-Venezia Giulia.
Planimetria
Posizione strategica
Richiedi informazioni
I nostri consulenti ti contatteranno il prima possibile.
vrpano Virtual Tour mail Invia Messaggio193516592